Attraktives Mehrfamilienhaus (8 Wohnungen) als Kapitalanlage in Bocholt-Stenern!
- Objekt-Nr:50022
- Immobilienart:Mehrfamilienhaus
- Vermarktungsart:Kauf
- Adresse:Hohe Giethorst 22-24
- 46397 Bocholt
- Region:Deutschland
Beschreibungen zur Immobilie
Beschreibung im Detail
Zum Verkauf steht ein im Jahr 1962 erbautes, voll vermietetes 8-Parteienhaus, das sich ideal als solide Kapitalanlage eignet.
Das Haus ist komplett unterkellert, wobei jeder der 8 Mietparteien ein eigener Kellerraum zur Verfügung steht.
Für den Zugang zum Keller gibt es 2 separate Außeneingänge.
Ausstattung:
• Insgesamt 8 vermietete Wohneinheiten.
• Voll vermietet.
• Jahreskaltmiete: 36.600,00 €.
• Jede Wohnung verfügt über eine eigene Gasheizung.
• Eigene Zähler für Strom, Wasser und Gas (separate Verbrauchserfassung pro Einheit).
• Alle Wohnungen mit eigenem Kellerraum.
• Zwei Kelleraußeneingänge vorhanden.
• Grundstücksgröße: ca. 1.832 m².
Ein wesentlicher Vorteil für die Verwaltung des Objekts ist die autarke Versorgung der Wohnungen.
Jede Einheit ist mit einer eigenen Gasetagenheizung sowie separaten Zählern für Strom, Wasser und Gas ausgestattet.
Dies ermöglicht eine direkte Abrechnung der Nebenkosten mit den Mietern.
Sonstiges:
• Möglichkeit zur Modernisierung einzelner Wohnungen oder zur Neupositionierung am Markt.
• Möglichkeit die Mieten zu erhöhen.
• Potenzial zur Optimierung der Betriebskosten durch effiziente Modernisierung der Heiz- und Haustechnik.
Hinweis:
Alle Angaben sind ohne Gewähr und basieren ausschließlich auf Informationen, die uns von unserem Auftraggeber übermittelt wurden.
Der Makler übernimmt keine Haftung für die Richtigkeit und Vollständigkeit der genannten Informationen.
Sie möchten Ihre Immobilie verkaufen? Rufen Sie an:
Andreas Riedel Tel.: 02871-232309 oder Mobil: 0172-2817700
Beschreibung der Lage
SEhr ruhige und schöne Lage: Hohe Giethorst 22-24 in 46397 Bocholt
Beschreibung der Ausstattung
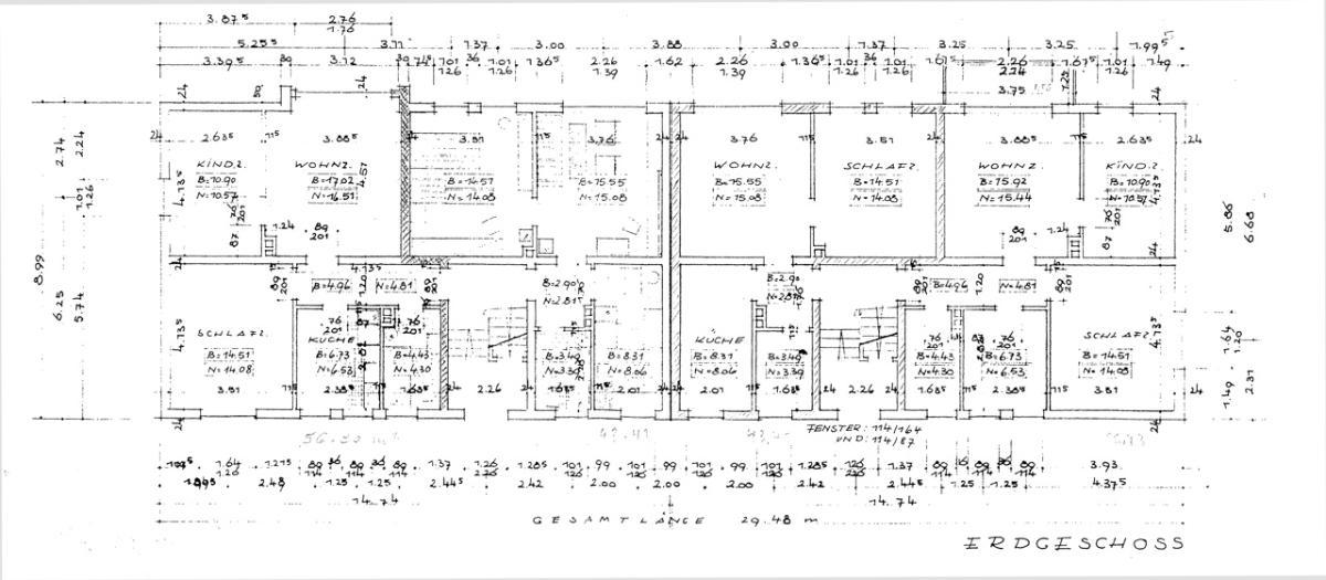
Mehrparteienhaus mit 8 Wohnungen.
4 Wohnungen haben eine Wohnfläche von ca. 43 m².
4 Wohnungen haben eine Wohnfläche von ca. 57 m².
Gesamtwohnfläche: ca. 400 m².
Details zur Immobilie
Preise
- Kaufpreis: 800.000,00 EUR
- Courtage / Provision: zzgl. 5,95 % Käufercourtage inkl. 19 % MwSt.
Flächen
- Wohnfläche: ca. 400 m²
- Zimmerzahl: 20
- Grundstücksfläche: ca. 1.832 m²
Ausstattung
- Art der Ausstattung: normal
- Heizungsart: Etagenheizung
- Befeuerung: Gas
- Bodenbelag: Fliesen, Laminat
- Bauart des Hauses: Massivhaus
- Küche: Einbauküche
- Badezimmer: mit Dusche, mit Fenster
- Keller: ja
- unterkellert: ja
- Garten /-nutzung: ja
- Verglasung: doppelt verglast
- Fenster: Kunststoff
- Rollladen: ja
- Rollladen (Art): Kunststoff
- Dachform: Satteldach
Zustandsangaben
- Baujahr: 1962
- Bauphase: Bau abgeschlossen
Energieausweis
- Energieausweis vorhanden: ja
- Energieeffizienzklasse: G
- erstellt am: 07.08.2025
- gültig bis: 06.08.2023
- Art des Energieausweises: nach Bedarf
- Endenergiebedarf insgesamt: ca. 212,9 kWh/(m²a)
- Endenergiebedarf für Heizung: ca. 212,9 kWh/(m²a)
