Immobilie 50706

RückansichtRückansichtRückansichtStraßenansichtStraßenansichtTerrasseTerrasseBlick in den GartenBlick in den GartenGarageGarageGaragenhofDieleDiele mit KellertreppeGarderobeDieleDiele mit Treppe zum OGKücheKücheWohn-/EsszimmerWohn-/EsszimmerWohn-/EsszimmerWohn-/EsszimmerGäste-WCEG-GrundrissOG-GrundrissKeller-GrundrissSpitzboden-GrundrissTreppe zum OGFlur im OGFlur im OGFlur im OGFlur im OGElternzimmerElternzimmerElternzimmer1. Kinderzimmer1. Kinderzimmer2. Kinderzimmer2. Kinderzimmer3. Kinderzimmer3. KinderzimmerBad im OGBad im OGBad im OGTreppe zum SpitzbodenSpitzbodenSpitzbodenSpitzbodenSpitzbodenTreppe zum KellerKellertreppeHausanschlüsseFlur im Keller1. Kellerraum2. KellerraumPartyraum im KellerPartyraum im KellerPartyraumDusche im KellerDuschraumDusche im KellerGasheizung im KellerKelleraußentreppeKelleraußentreppe

Geräumiges Reihenmittelhaus mit Garage!

Kennung:

50706

Angebot:

Reihenmittelhaus / Kauf

Adresse:

Heinrich-von-Gemen-Str. 6
46514 Schermbeck
Deutschland

Preise

Kaufpreis:

295.000,00 EUR

Courtage / Provision:

zzgl. 4,165 % Käufercourtage inkl. 19 % MwSt.

provisionspflichtig:

Flächen

Wohnfläche:

ca. 133 m²

Zimmerzahl:

5

Anzahl Badezimmer:

1

Anzahl Schlafzimmer:

4

Anzahl separater WC's:

2

Anzahl Terrassen:

1

Terrassenfläche:

ca. 25 m²

Grundstücksfläche:

ca. 220 m²

Stellplatzart:

Garage

Ausstattung

Art der Ausstattung:

normal

Heizungsart:

Zentralheizung

Befeuerung:

Gas

Bodenbelag:

Fliesen, Laminat, Teppich

Bauart des Hauses:

Massivhaus

Badezimmer:

mit Badewanne, mit Dusche

Keller:

unterkellert:

Garten /-nutzung:

Balkon / Terrasse:

Ausrichtung Balkon / Terrasse:

Süd, West

Verglasung:

doppelt verglast

Fenster:

Kunststoff

Rollladen:

Rollladen (Art):

Kunststoff

Dachform:

Satteldach

Baumbestand:

Zustandsangaben

Baujahr:

1976

Bauphase:

Bau abgeschlossen

Energieausweis

Energieausweis vorhanden:

Energieeffizienzklasse:

G

erstellt am:

26.08.2025

gültig bis:

25.08.2035

Art des Energieausweises:

nach Bedarf

Endenergiebedarf insgesamt:

ca. 225,2 kWh/(m²a)

Endenergiebedarf für Heizung:

ca. 225,2 kWh/(m²a)

Beschreibung im Detail

Suchen Sie ein geräumiges Zuhause für Ihre Familie in einer ruhigen Wohngegend?
Dann ist dieses charmante Reihenmittelhaus mit Garage aus dem Jahr 1976 genau das Richtige für Sie.
Mit ca. 132,5 m² Wohnfläche und einem ca. 220 m² großen Grundstück bietet es viel Platz und Potenzial.

Weitere Details:
• Garage: Eine eigene Garage sorgt für einen sicheren Stellplatz.
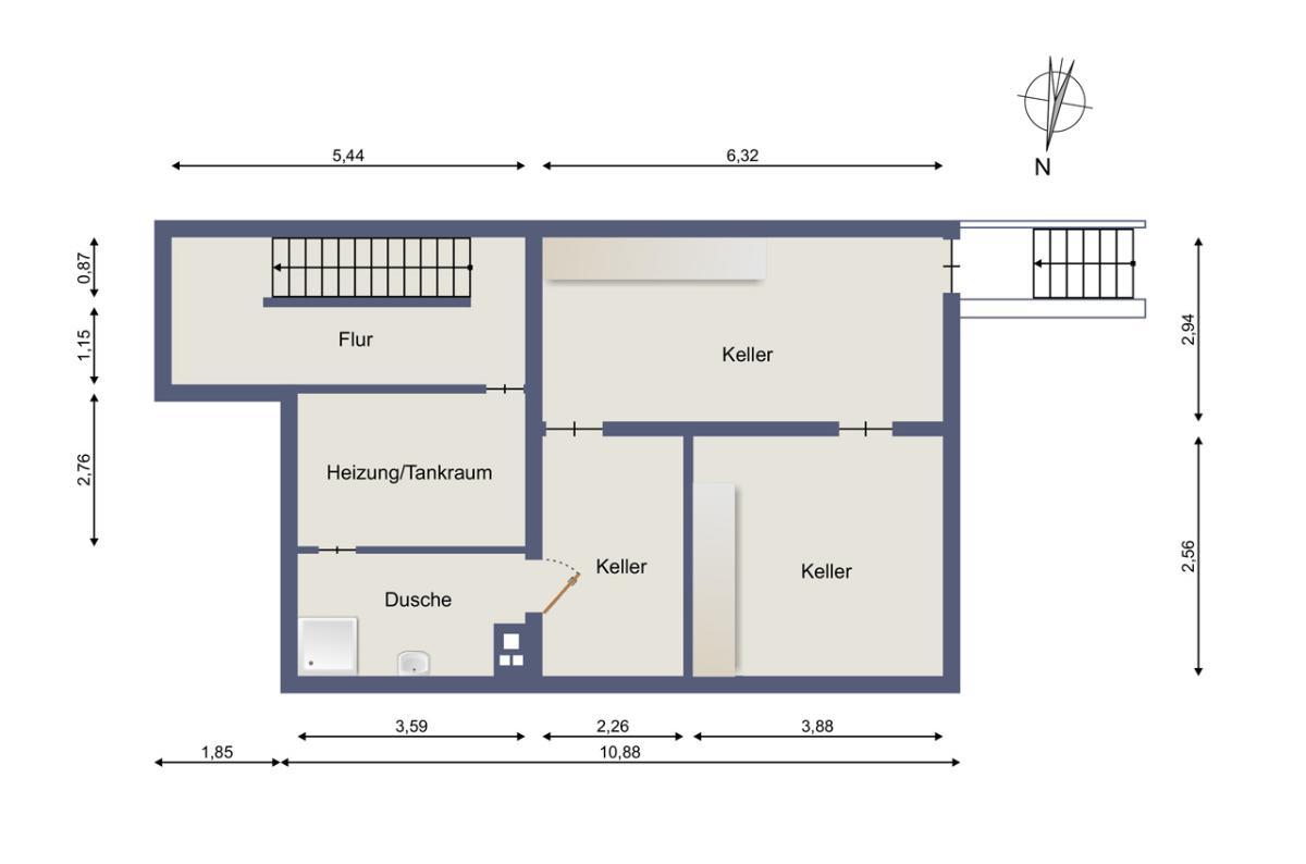
• Keller: Der Keller bietet nicht nur zusätzlichen Stauraum, sondern auch eine praktische Dusche und einen separaten Außeneingang.
Ein Partyraum und eine Dusche sind im Keller vorhanden.
• Heizung: Beheizt wird das Haus durch eine zuverlässige Junkers Brennwert-Gasheizung von 2006.
• Fenster: Die weißen Kunststofffenster mit Doppelverglasung tragen zur Energieeffizienz bei.
• Ausbaureserve: Ein besonderes Highlight ist die große Ausbaureserve im Spitzboden, die Ihnen die Möglichkeit bietet, weiteren Wohnraum nach Ihren Wünschen zu schaffen.

Weitere Bilder sehen Sie hier: www.riedel-immobilien.info

Vereinbaren Sie noch heute einen Besichtigungstermin und überzeugen Sie sich selbst von den Vorzügen dieser Immobilie!
Riedel Immobilien, Edith Riedel: Mobil 0172-2807700

Hinweis:
Alle Angaben sind ohne Gewähr und basieren ausschließlich auf Informationen, die uns von unserem Auftraggeber übermittelt wurden.
Der Makler übernimmt keine Haftung für die Richtigkeit und Vollständigkeit der genannten Informationen.

Sie möchten Ihre Immobilie verkaufen? Rufen Sie an:
Edith Riedel Tel.: 02871-7700 oder Mobil: 0172-2807700

Beschreibung der Lage

Die zentrale und doch ruhige Lage macht dieses Haus zum idealen Ort für ein entspanntes Familienleben.
Einkaufsmöglichkeiten, Schulen und öffentliche Verkehrsmittel sind bequem zu erreichen.

Beschreibung der Ausstattung

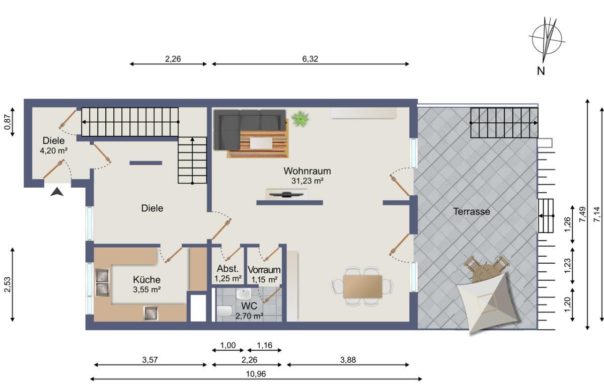
Das Erdgeschoss empfängt Sie mit einer großzügigen Diele. Von hier aus gelangen Sie in die Küche und das große Wohn- und Esszimmer.
Das Wohnzimmer ist der zentrale Treffpunkt für die Familie und hat einen direkten Zugang zur ca. 25 m² großen Terrasse, die zu entspannten Stunden im Freien einlädt.
Ein Gäste-WC ist ebenfalls vorhanden.
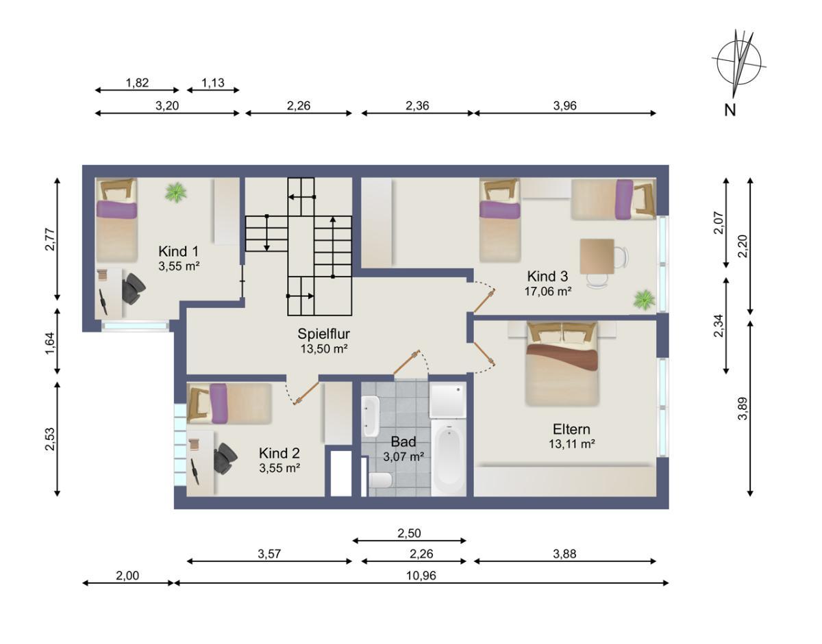
Im Obergeschoss befinden sich ein geräumiges Elternschlafzimmer und 3 Kinderzimmer, die viel Platz zum Spielen und Entspannen bieten.
Das Badezimmer ist mit einer Dusche und einer Badewanne ausgestattet.
Die Böden sind im Erdgeschoss mit Fliesen und Laminat ausgelegt, während im Obergeschoss Teppichboden für eine gemütliche Atmosphäre sorgt.
Das Bad ist voll gefliest.

Ihr Ansprechpartner

In Kontakt treten

Ihre Anfrage wird verarbeitet. Bitte haben Sie einen Moment Geduld.
Ihre Mitteilung wurde erfolgreich übermittelt. Wir werden uns umgehend mit Ihnen in Verbindung setzen.
Ihre Mitteilung konnte aufgrund eines Fehlers leider nicht übermittelt werden.
Ihre Anfrage wird verarbeitet. Bitte haben Sie einen Moment Geduld.