50056
Doppelhaus / Kauf
Weidenstr. 55a
46395 Bocholt
Deutschland
499.000,00 EUR
3,57 % Käufercourtage inkl. 19 % MwSt.
ca. 133,6 m²
5
1
1
4
2
1
ca. 282 m²
1
gehoben
2
Zentralheizung
Luft-Wasser-Wärmepumpe
Fliesen
Massivhaus
mit Badewanne, mit Dusche, mit Fenster, mit Waschmaschine
Süd
dreifach verglast
Kunststoff
Kunststoff, elektrisch
Satteldach
2025
in Planung (projektiert)
A+
14.05.2025
13.05.2035
nach Bedarf
ca. 24,3 kWh/(m²a)
ca. 24,3 kWh/(m²a)
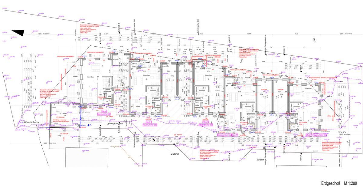
Räume im EG: Diele, Wohnzimmer, Küche, Hauswirtschaftsraum, Gäste-WC, 12 m² große Terrasse.
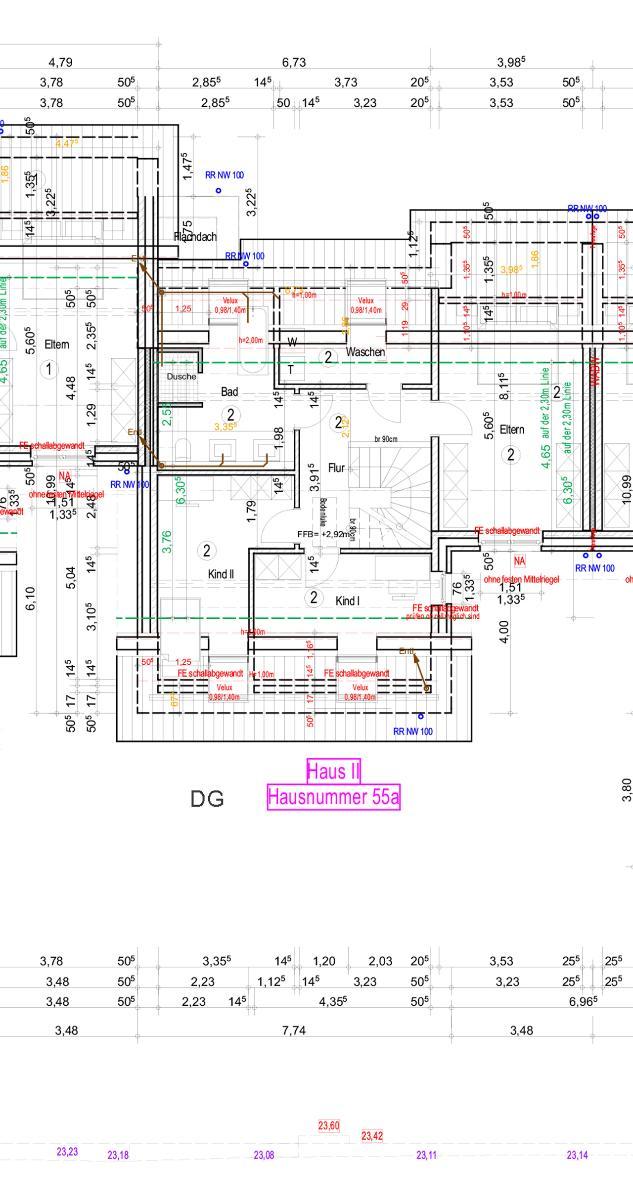
Räume im DG: Flur, Elternzimmer, 2 Kinderzimmer, Bad mit Dusche, Wanne, Fenster und Waschmaschinenanschluss.
Spitzboden: großer, ausgebauter Raum
Schöne Lage in 46395 Bocholt, Weidenstr. 55a
Diese moderne Neubau-Doppelhaushälfte bietet eine perfekte Kombination aus komfortablem Wohnen und durchdachtem Design.
Die DHH wird nach den Vorgaben von KfW-40 gebaut.
Objektdaten:
Baujahr: 2025
Bauweise: Massivbauweise nach KfW-40.
Wohnfläche: ca. 133,60 m².
Große Garage mit ca. 22,95 m² Nutzfläche und einem Bodenraum mit ca. 12,83 m² Nutzfläche.
Grundstücksgröße: ca. 282 m².
Kaufpreis: 499.000,00 €
Heizung: Wärmepumpe mit Fußbodenheizung in allen Aufenthaltsräumen und Bädern mit Einzelraumsteuerung einschließlich Raumthermostaten und Stellmotoren.
Die jeweiligen Geschossdecken und Bodenplatte werden als konventionell massive Betonplatte erstellt.
Die Treppen werden als konventionell massive Betontreppen erstellt.
Die Fenster- und Fenstertüranlagen werden mit 3-fach Verglasung ausgeführt.
Alle Fenster im Erd-, Obergeschoss erhalten Kunststoffrollläden in Standartfarben mit Rollladenkästen.
Alle Rollläden mit elektrischen Antrieben, einschl. elektrischen Anschluss und Zuleitung zum enthaltenen Schalter.
Fußböden: Fliesen im kompletten Erd- u. Obergeschoss.
Die WC´s werden wahlweise als Tief- oder Flachspüler installiert.
Das Haus wird im Waalformat (WF) verklinkert.
Zur Auststattung können Sie jetzt noch Ihre eigenen Wünsche äußern.
Die Fertigstellung des Hauses ist für den Zeitraum Februar bis Mai 2026 geplant.
Wir freuen uns auf Ihren Anruf:
Riedel Immobilien, Edith Riedel: Mobil 0172-2807700
Hinweis:
Alle Angaben sind ohne Gewähr und basieren ausschließlich auf Informationen, die uns von unserem Auftraggeber übermittelt wurden.
Der Makler übernimmt keine Haftung für die Richtigkeit und Vollständigkeit der genannten Informationen.
Sie möchten Ihre Immobilie verkaufen? Rufen Sie an:
Edith Riedel Tel.: 02871-7700 oder Mobil: 0172-2807700











