Immobilie 50055

StraßenansichtRückansichtBauschildBauschildBaugrundstückVorderansichtGartenansichtNord-West-AnsichtEG-GrundrissDG-GrundrissSpitzboden-GrundrissLageplan-1Lageplan-2EG-Grundriss-ProjektBauschild/GrundstückBauschild/Grundstück

Neubau-Einfamilienhaus im Wohnungseigentum mit Garage (KfW-40)!

Kennung:

50055

Angebot:

Einfamilienhaus / Kauf

Adresse:

Weidenstr. 55
46395 Bocholt
Deutschland

Preise

Kaufpreis:

649.000,00 EUR

Courtage / Provision:

3,57 % Käufercourtage inkl. 19 % MwSt.

provisionspflichtig:

Flächen

Wohnfläche:

ca. 165,77 m²

Zimmerzahl:

6

Anzahl Badezimmer:

1

Anzahl Wohnzimmer:

1

Anzahl Schlafzimmer:

4

Anzahl separater WC's:

2

Anzahl Terrassen:

1

Grundstücksfläche:

ca. 743 m²

Anzahl Stellplätze:

1

Ausstattung

Art der Ausstattung:

gehoben

Gesamtetagenzahl:

2

Heizungsart:

Zentralheizung

Befeuerung:

Luft-Wasser-Wärmepumpe

Bodenbelag:

Fliesen

Bauart des Hauses:

Massivhaus

Badezimmer:

mit Badewanne, mit Dusche, mit Fenster, mit Waschmaschine

Keller:

Balkon / Terrasse:

Ausrichtung Balkon / Terrasse:

Süd

Verglasung:

dreifach verglast

Fenster:

Kunststoff

Rollladen:

Rollladen (Art):

Kunststoff, elektrisch

Dachform:

Satteldach

Zustandsangaben

Baujahr:

2025

Bauphase:

in Planung (projektiert)

Energieausweis

Energieausweis vorhanden:

Energieeffizienzklasse:

A+

erstellt am:

14.05.2025

gültig bis:

13.05.2035

Art des Energieausweises:

nach Bedarf

Endenergiebedarf insgesamt:

ca. 24,3 kWh/(m²a)

Endenergiebedarf für Heizung:

ca. 24,3 kWh/(m²a)

Beschreibung im Detail

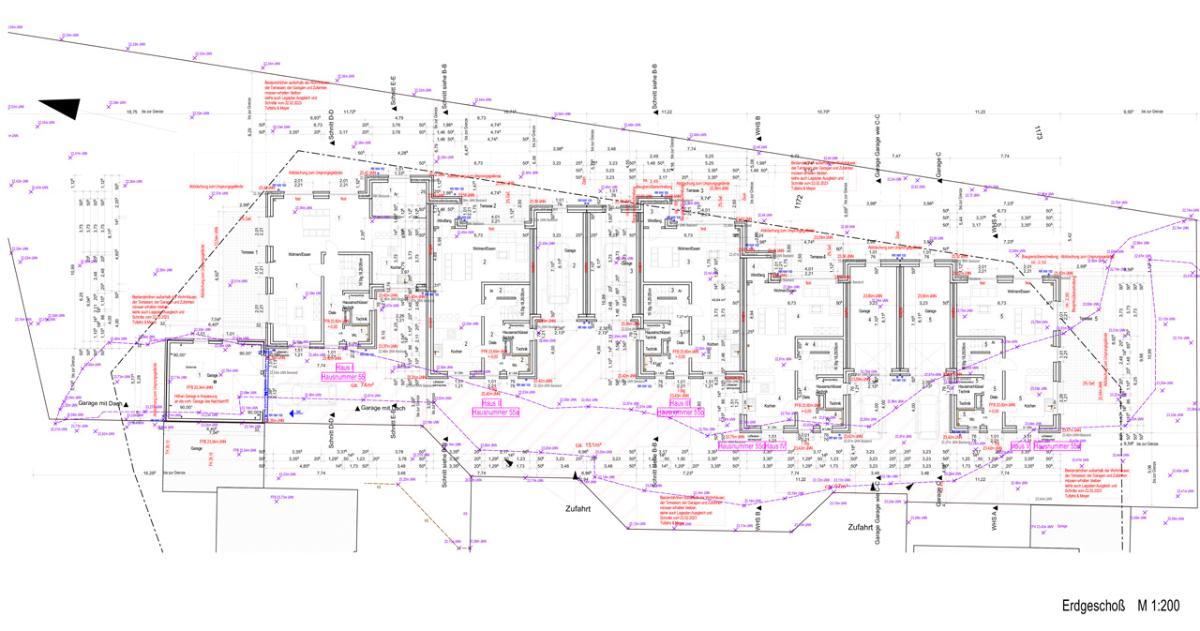
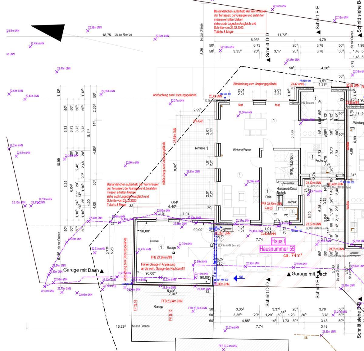
Räume im EG: Diele, Wohn-/Esszimmer, Küche, Abstellraum, Hauswirtschaftsraum, Gäste-WC, 12 m² große Terrasse.
Räume im DG: Flur, Elternzimmer, 2 Kinderzimmer, Bad mit Dusche, Wanne, Fenster und Waschmaschinenanschluss.
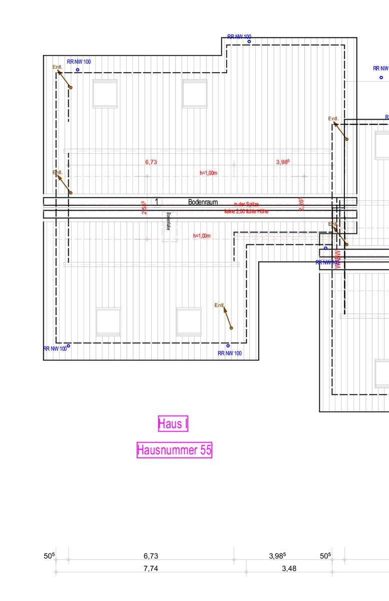
Spitzboden: großer, ausgebauter Raum

Beschreibung der Lage

Schöne Lage in 46395 Bocholt, Weidenstr. 55

Beschreibung der Ausstattung

Dieses moderne, Neubau-Einfamilienhaus bietet eine perfekte Kombination aus komfortablem Wohnen und durchdachtem Design.
Das Neubau-Einfamilienhaus wird nach den Vorgaben von KfW-40 gebaut.

Objektdaten:
Baujahr: 2025
Bauweise: Massivbauweise nach KfW-40.
Wohnfläche: ca. 165,77 m².
Große Garage mit ca. 33,82 m² Nutzfläche und einem Bodenraum mit ca. 12,33 m² Nutzfläche.
Grundstücksgröße: ca. 743 m².
Kaufpreis: 649.000,00 €

Heizung: Wärmepumpe mit Fußbodenheizung in allen Aufenthaltsräumen und Bädern mit Einzelraumsteuerung einschließlich Raumthermostaten und Stellmotoren.
Die jeweiligen Geschossdecken und Bodenplatte werden als konventionell massive Betonplatte erstellt.
Die Treppen werden als konventionell massive Betontreppen erstellt.
Die Fenster- und Fenstertüranlagen werden mit 3-fach Verglasung ausgeführt.
Alle Fenster im Erd-, Obergeschoss erhalten Kunststoffrollläden in Standartfarben mit Rollladenkästen.
Alle Rollläden mit elektrischen Antrieben, einschl. elektrischen Anschluss und Zuleitung zum enthaltenen Schalter.
Fußböden: Fliesen im kompletten Erd- u. Obergeschoss.
Die WC´s werden wahlweise als Tief- oder Flachspüler installiert.
Das Haus wird im Waalformat (WF) verklinkert.
Zur Auststattung können Sie jetzt noch Ihre eigenen Wünsche äußern.

Die Fertigstellung des Hauses ist für den Zeitraum Februar bis Mai 2026 geplant.

Wir freuen uns auf Ihren Anruf:
Riedel Immobilien, Edith Riedel: Mobil 0172-2807700

Hinweis:
Alle Angaben sind ohne Gewähr und basieren ausschließlich auf Informationen, die uns von unserem Auftraggeber übermittelt wurden.
Der Makler übernimmt keine Haftung für die Richtigkeit und Vollständigkeit der genannten Informationen.

Sie möchten Ihre Immobilie verkaufen? Rufen Sie an:
Edith Riedel Tel.: 02871-7700 oder Mobil: 0172-2807700

Ihr Ansprechpartner

In Kontakt treten

Ihre Anfrage wird verarbeitet. Bitte haben Sie einen Moment Geduld.
Ihre Mitteilung wurde erfolgreich übermittelt. Wir werden uns umgehend mit Ihnen in Verbindung setzen.
Ihre Mitteilung konnte aufgrund eines Fehlers leider nicht übermittelt werden.
Ihre Anfrage wird verarbeitet. Bitte haben Sie einen Moment Geduld.