Attraktive Doppelhaushälfte in begehrter Lage von Bocholt-Biemenhorst – Gepflegt mit Garage und Photovoltaikanlage!
- Objekt-Nr:50004
- Immobilienart:Doppelhaus
- Vermarktungsart:Kauf
- Adresse:Weikamps Land 4
- 46395 Bocholt (Biemenhorst)
- Region:Deutschland
Beschreibungen zur Immobilie
Beschreibung im Detail
Zum Verkauf steht eine sehr gepflegte Doppelhaushälfte in der beliebten Wohngegend von Bocholt-Biemenhorst (PLZ 46395).
Erbaut im Jahr 2000, präsentiert sich das Objekt in einem hervorragenden Zustand und bietet mit 104 m² Wohnfläche auf einem ca. 260 m² großen Grundstück ein ideales Zuhause für Familien oder Paare. Eine Garage rundet das attraktive Angebot ab.
Ausstattung und Highlights
Diese Immobilie überzeugt durch eine hochwertige und moderne Ausstattung sowie durchdachte Details:
• Top-Zustand: Die Doppelhaushälfte ist äußerst gepflegt und wurde fortlaufend instand gehalten.
• Energieeffizienz & Zusatzeinnahmen: Eine Photovoltaikanlage wurde bereits im Jahr 2010 installiert und liefert derzeit einen monatlichen Ertrag aus der Einspeisevergütung von ca. 226,00 €.
• Neue Heizungsanlage: Für niedrige Energiekosten und zeitgemäßen Komfort sorgt die neue Gasheizung des Markenherstellers Viessmann aus dem Jahr 2021.
• Inklusive Einbauküche: Die schöne Einbauküche ist bereits im Kaufpreis enthalten und ermöglicht einen sofortigen Einzug ohne zusätzliche Anschaffungskosten.
• PKW-Stellplatz: Eine Garage bietet Platz und Schutz für Ihr Fahrzeug.
• Große, überdachte Terrasse mit sehr gepflegtem Garten.
Eckdaten im Überblick:
Objektart: Doppelhaushälfte mit Garage
Baujahr: 2000
Zustand: Sehr gepflegt
Wohnfläche: ca. 104 m²
Grundstück: ca. 260 m²
Heizung: Gasheizung (Viessmann, 2021)
Zusatzausstattung: Photovoltaikanlage (2010)
PV-Ertrag/Monat: ca. 226,00 € (Einspeisevergütung)
Kaufpreis: 398.000,00 €
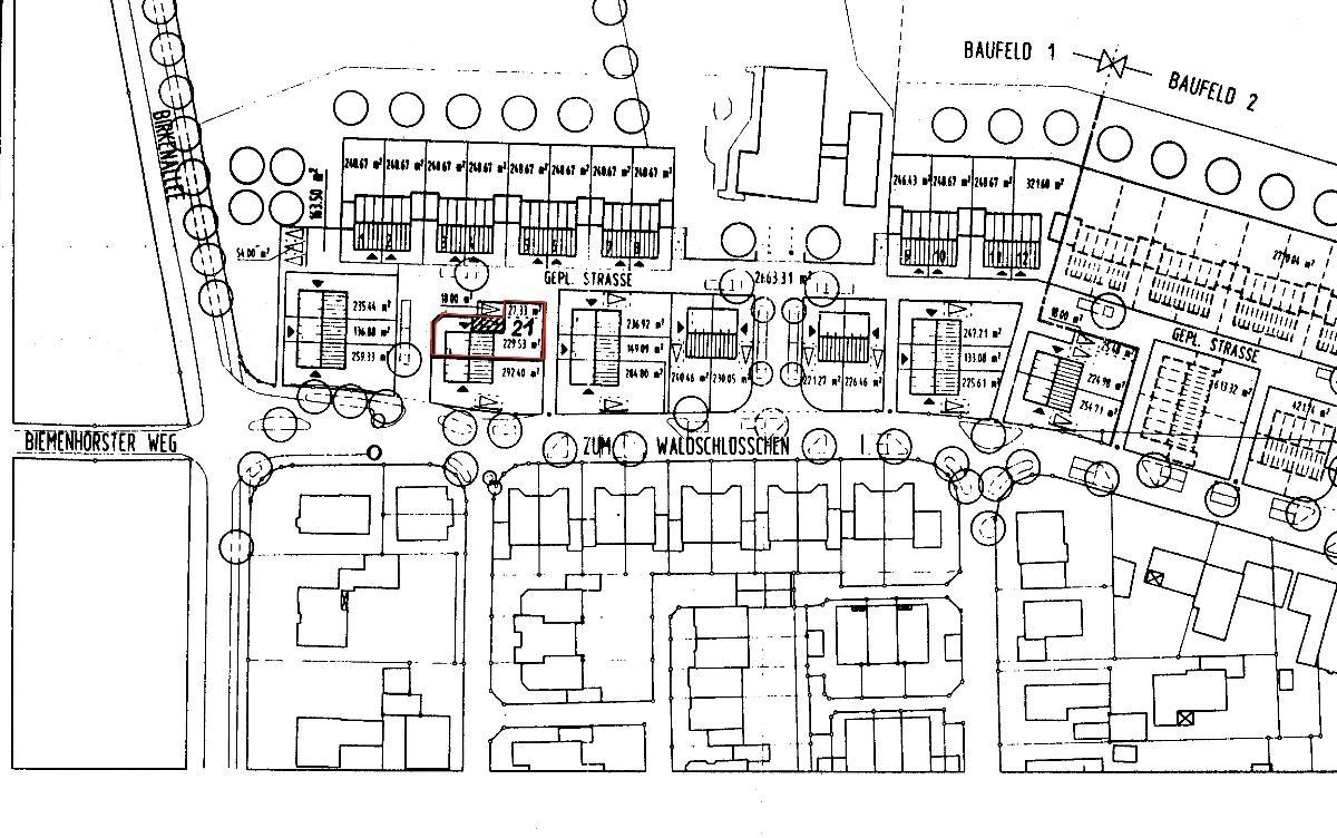
Lage: 46395 Bocholt-Biemenhorst
Fazit
Sichern Sie sich diese attraktive, sofort bezugsfertige und energetisch optimierte Doppelhaushälfte in einer Top-Lage von Bocholt.
Die Kombination aus neuwertiger Heizung, inkludierter Küche und den Einnahmen durch die Photovoltaikanlage macht dieses Angebot besonders interessant.
Beschreibung der Lage
Die Immobilie befindet sich in einer sehr schönen und ruhigen Wohnlage im Ortsteil Bocholt-Biemenhorst.
Biemenhorst zeichnet sich durch seine familienfreundliche Atmosphäre, die Nähe zur Natur und die gute Anbindung an das Zentrum von Bocholt aus.
Hier genießen Sie die Vorzüge des ländlichen Wohnens ohne auf die Infrastruktur einer Stadt verzichten zu müssen.
Beschreibung der Ausstattung
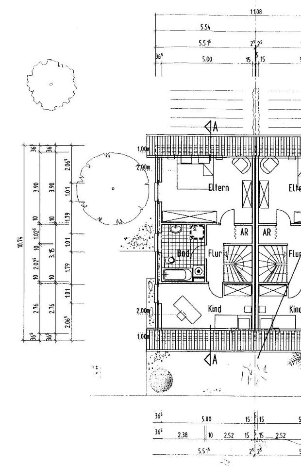
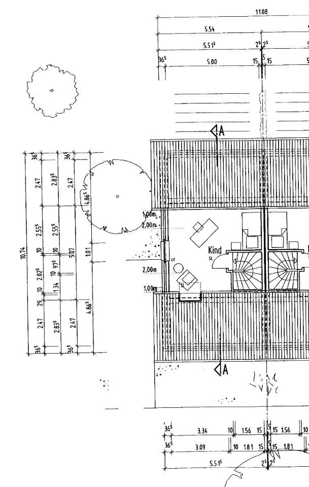
EG: Diele, großes Wohn-/Esszimmer mit gr. überdachter Terrasse, Küche mit Einbauküche, HWR mit Haus- u. Waschmaschinenanschluss, Gäste-WC
DG: Flur, Elternzimmer, Kinderzimmer, Bad mit großer Eckwanne
Spitzboden: 2. Kinderzimmer und Heizungsraum
Gepflegte Gartenanlage, Garage
Details zur Immobilie
Preise
- Kaufpreis: 398.000,00 EUR
- Courtage / Provision: zzgl. 3,57 % Käufercourtage inkl. 19 % MwSt.
- provisionspflichtig: ja
Flächen
- Wohnfläche: ca. 104 m²
- Zimmerzahl: 4
- Terrassenfläche: ca. 30 m²
- Grundstücksfläche: ca. 260 m²
- Stellplatzart: Außenstellplatz, Garage
Ausstattung
- Heizungsart: Zentralheizung
- Befeuerung: Gas
- Bodenbelag: Fliesen, Teppich
- Küche: Einbauküche
- Badezimmer: mit Badewanne, mit Dusche, mit Fenster
- Keller: nein
- unterkellert: nein
- Garten /-nutzung: ja
- Balkon / Terrasse: ja
- Technik: Satelliten-TV
- Verglasung: doppelt verglast
- Fenster: Kunststoff
- Rollladen: ja
- Rollladen (Art): Kunststoff
- Dachform: Satteldach
Zustandsangaben
- Baujahr: 2000
- Zustandsart: ausgezeichnet
- Bauphase: Bau abgeschlossen
Energieausweis
- Energieausweis vorhanden: ja
- Energieeffizienzklasse: C
- erstellt am: 20.11.2025
- gültig bis: 19.11.2025
- Art des Energieausweises: nach Verbrauch
- Verbrauchskennwert insgesamt: ca. 97 kWh/(m²a)
- Verbrauchskennwert für Heizung: ca. 97 kWh/(m²a)
- Verbrauch inkl. Warmwasser: ja
